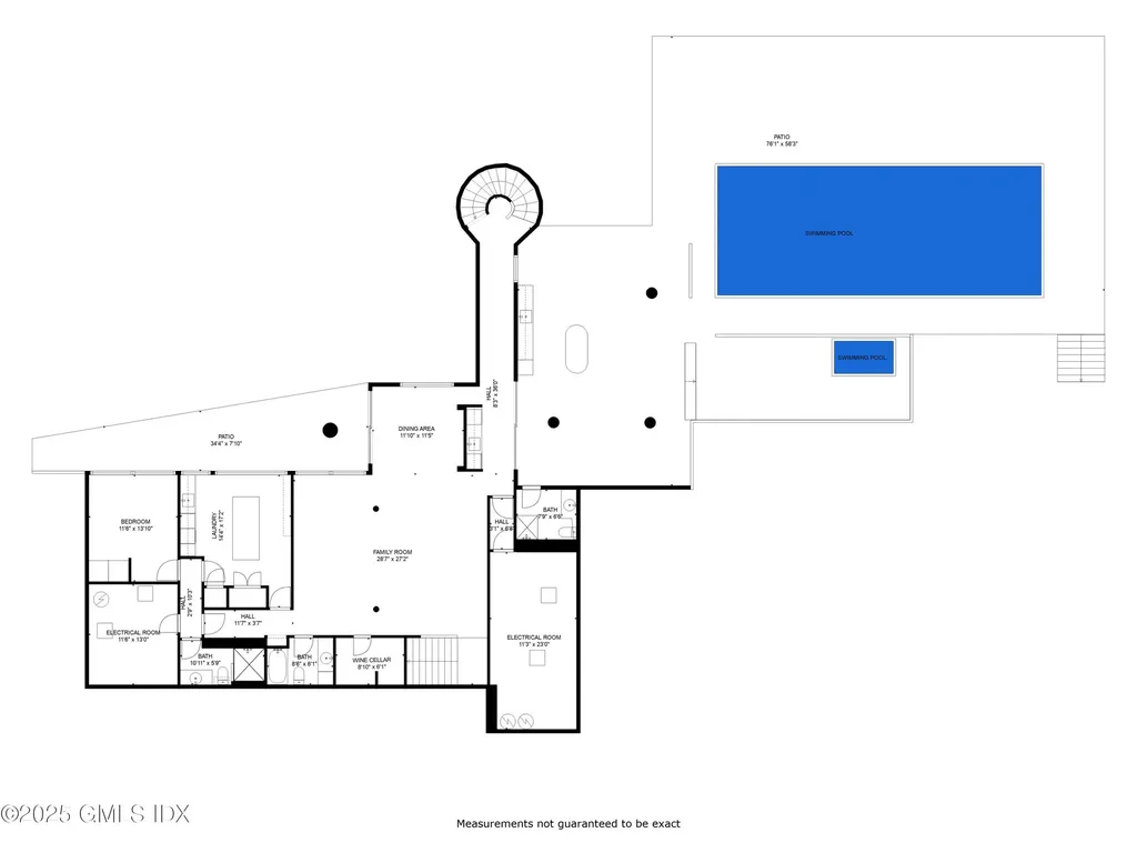
This is more than a home-it's a living work of art. Come and see the recent updates, including fresh new painting throughout, as well as enhanced landscaping and outdoor lighting. The extraordinary residence functions beautifully for family living but originally it was a 200-year-old barn transformed in 1973 by acclaimed architect Charles Gwathmey, blending rustic heritage with bold modernist design. The home showcases Gwathmey's signature sculptural details, including glass block walls and an interior silo encircling a dramatic spiral staircase. The centerpiece is a breathtaking 30' x 35' great room with soaring beamed ceilings, a massive fireplace, and natural light pouring through expansive windows. The property has since been thoughtfully expanded by its current owners and was featured in Architectural Digest in 2005. Set on a secluded mid-country acre, the home offers five bedrooms and a seamless indoor-outdoor flow that invites year around entertaining. Designed with both style and practicality in mind, the layout offers generous gathering spaces, private retreats, and a backyard oasis with mature specimen plantings, pool, spa, firepit, grill, bar and covered lounge area. Every detail, from the architectural pedigree to the lifestyle amenities, reflects a rare fusion of history, innovation, and artistry.

Listing Tools (detailViewNewGen)

Property Details of 490 North Street

Map Location

Listed by Cate Keeney of Sotheby's International Realty

Listing data provided by Greenwich MLS

15.4.6 Participants (and their affiliated licensees, if applicable) shall indicate on their websites that IDX information is provided exclusively for consumers’ personal, non-commercial use, that it may not be used for any purpose other than to identify prospective properties consumers may be interested in purchasing, and that data is deemed reliable but is not guaranteed accurate by the MLS. The MLS may, at its discretion, require use of other disclaimers as necessary to protect participants and/or the MLS from liability. Displays of minimal information (e.g. “thumbnails”, text messages, “tweets”, etc., of two hundred (200) characters of less are exempt from this requirement but only when linked directly to a display that includes all required disclosures. (Amended 5/12)

Hi there! How can we help you?

Contact us using the form below or give us a call.

Send Us A Message:

I agree to receive marketing and customer service calls and text messages from Scott Elwell. To opt out, you can reply 'stop' at any time or click the unsubscribe link in the emails. Consent is not a condition of purchase. Msg/data rates may apply. Msg frequency varies. Privacy Policy.

Do not fill in this field:

This site is protected by reCAPTCHA and the Google Privacy Policy and Terms of Service apply.

Hi there! How can we help you?

Contact us using the form below or give us a call.

Send Us A Message:

Do not fill in this field:

This site is protected by reCAPTCHA and the Google Privacy Policy and Terms of Service apply.

Hi there! How can we help you?

Contact us using the form below or give us a call.

Send Us A Message:

Do not fill in this field:

This site is protected by reCAPTCHA and the Google Privacy Policy and Terms of Service apply.

Do not fill in this field:

This site is protected by reCAPTCHA and the Google Privacy Policy and Terms of Service apply.

Do not fill in this field:

This site is protected by reCAPTCHA and the Google Privacy Policy and Terms of Service apply.

Do not fill in this field:

This site is protected by reCAPTCHA and the Google Privacy Policy and Terms of Service apply.

$

Do not fill in this field:

This site is protected by reCAPTCHA and the Google Privacy Policy and Terms of Service apply.