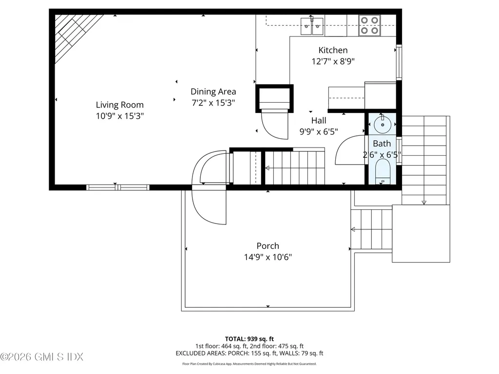
Welcome to easy living in the heart of Springdale, one of Stamford's most vibrant and convenient neighborhoods. This beautifully maintained condo offers the perfect blend of comfort, style, and convenience - just minutes from the Springdale Metro-North station, shopping, dining, and local favorites like Humbled Coffeehouse right down the street. Step inside to an inviting open-concept main level featuring hardwood floors, recessed lighting, and a cozy gas fireplace that anchors the living space. The dining area flows seamlessly into the updated kitchen, complete with white cabinetry, granite countertops, subway tile backsplash, stainless steel appliances, and a breakfast bar ideal for casual dining or entertaining. Upstairs, you'll find spacious bedrooms filled with natural light and generous closet space. A convenient in-unit laundry adds everyday ease. The home also includes an attached garage plus additional parking -- a rare and valuable feature in this area.Enjoy morning coffee on your private deck or take a short stroll to grab your favorite latte at Humbled before hopping on the train. With low-maintenance living, a smart layout, and an unbeatable Springdale location, this condo is ideal for commuters, first-time buyers, or anyone looking for turnkey convenience in Stamford. Sale contingent upon seller finding suitable housing.

Listing Tools (detailViewNewGen)

Property Details of 680 Hope Street, Unit 12

Map Location

Listed by Ryan Ciambriello of Houlihan Lawrence

Listing data provided by Greenwich MLS

15.4.6 Participants (and their affiliated licensees, if applicable) shall indicate on their websites that IDX information is provided exclusively for consumers’ personal, non-commercial use, that it may not be used for any purpose other than to identify prospective properties consumers may be interested in purchasing, and that data is deemed reliable but is not guaranteed accurate by the MLS. The MLS may, at its discretion, require use of other disclaimers as necessary to protect participants and/or the MLS from liability. Displays of minimal information (e.g. “thumbnails”, text messages, “tweets”, etc., of two hundred (200) characters of less are exempt from this requirement but only when linked directly to a display that includes all required disclosures. (Amended 5/12)

Hi there! How can we help you?

Contact us using the form below or give us a call.

Send Us A Message:

I agree to receive marketing and customer service calls and text messages from Scott Elwell. To opt out, you can reply 'stop' at any time or click the unsubscribe link in the emails. Consent is not a condition of purchase. Msg/data rates may apply. Msg frequency varies. Privacy Policy.

Do not fill in this field:

This site is protected by reCAPTCHA and the Google Privacy Policy and Terms of Service apply.

Hi there! How can we help you?

Contact us using the form below or give us a call.

Send Us A Message:

Do not fill in this field:

This site is protected by reCAPTCHA and the Google Privacy Policy and Terms of Service apply.

Hi there! How can we help you?

Contact us using the form below or give us a call.

Send Us A Message:

Do not fill in this field:

This site is protected by reCAPTCHA and the Google Privacy Policy and Terms of Service apply.

Do not fill in this field:

This site is protected by reCAPTCHA and the Google Privacy Policy and Terms of Service apply.

Do not fill in this field:

This site is protected by reCAPTCHA and the Google Privacy Policy and Terms of Service apply.

Do not fill in this field:

This site is protected by reCAPTCHA and the Google Privacy Policy and Terms of Service apply.

$

Do not fill in this field:

This site is protected by reCAPTCHA and the Google Privacy Policy and Terms of Service apply.